Plan 180706
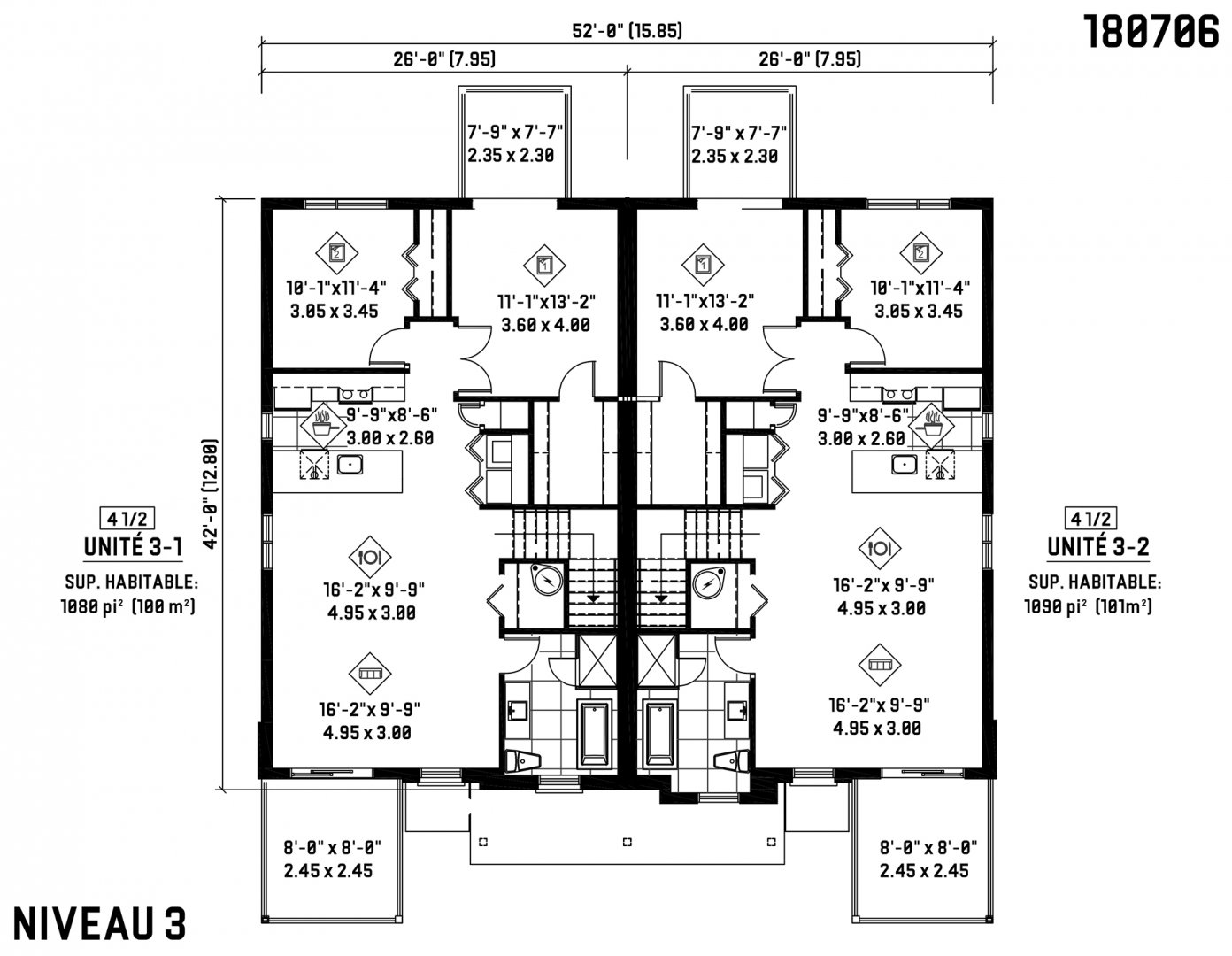
Ce multilogement de style champêtre comprend six logements de 4 ½ qui disposent tous d’une entrée indépendante et qui occupent une superficie totale de 6 540 pieds carrés. Les unités ont une superficie habitable variant de 1 030 à 1 090 pieds carrés. Les espaces de vie de chaque logement sont à aire ouverte comprenant une salle à manger, une cuisine, un salon, deux chambres, une salle de bain avec douche et baignoire séparées ainsi qu’un placard pour la laveuse et sécheuse.
Caractéristiques
| Style d'architecture | Champêtre | ||
|---|---|---|---|
| Facade | 52 pi | Profondeur | 42 pi |
| Nombre de chambres | 12 | Nombre de salle de bain | 6 |
| Surface étage | 0 pi² | Surface rez-de-chaussée | 0 pi² |
| Hauteur | 38 pi |
En vertu de la loi sur les droits d’auteur, notez que toute reproduction des plans, d’utilisation à des fins publicitaires en partie ou en totalité est interdite sans l’autorisation écrite de PLANISTUDIO.